Carland View, St. Newlyn East

Sale Agreed
1 Receptions
Terraced House
Tenure: Leasehold
3 Bedrooms
2 Bathrooms

Carland View, St. Newlyn East

£120,000

Property Summary

A RARE OPPORTUNITY TO PURCHASE A THREE BEDROOM 40% SHARED OWNERSHIP PROPERTY IN THE QUAINT VILLAGE OF ST NEWLYN EAST. THIS PROPERTY IS PRESENTED TO A GREAT STANDARD INSIDE AND OUT WITH ALLOCATED PARKING AND A NEAT MATURE GARDEN.

Read full description

Full Details

Welcome to Number Nineteen Carland View a modern three bedroom shared ownership house located within the quaint village of St Newlyn East and only 15 minutes drive from Newquay, it is within easy reach of the Primary School. St Newlyn East has a locally renowned butchers, a local shop, a Primary School and a family friendly pub whilst the highly sought after coastal town of Newquay is just 6 miles away and has recently been named as one of the UK's most desirable places to live and it's not difficult to see why!...Hugged by miles of sandy beaches offering world class waves, family friendly rock pools and calm water for paddle boarding there is something for everyone to enjoy!

The vibrant town of Newquay offers an array or cafes, restaurants and bars with a good range of shops. The closer villages of Crantock and Cubert have a more relaxed feel with good day to day amenities and some of the most beautiful coastline and countryside on the north coast.

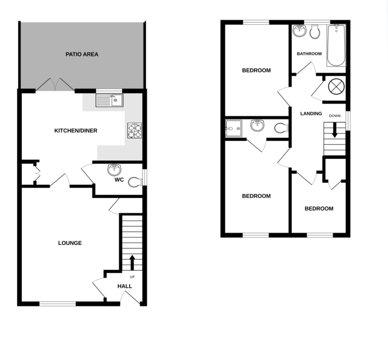
Step into this well-presented home via a neat entrance hallway, which features stairs to the first floor and leads directly into the spacious lounge. With a front-facing window and a handy understairs storage cupboard, the lounge offers ample space for the whole family to relax at the end of the day. To the rear, the bright and airy kitchen is a fantastic size and easily accommodates a dining table. It boasts a good range of cream units, with space for a dishwasher, washing machine, and fridge freezer. An integrated oven and electric hob are also included. Off from the kitchen, there's a useful cloakroom.

Upstairs, the property offers three well-proportioned bedrooms—two generous doubles, one with an ensuite shower room and a single—ideal for families or those needing a home study. The bathroom is located off the landing and includes a bath with an electric shower over. A useful airing cupboard houses the water tank and there's also a useful additional storage cupboard.

This home benefits from modern electric heating powered by an efficient air source heat pump and double-glazed windows throughout. Outside, the rear garden features a lawn and patio area, with useful side access. The garden is a real highlight with a patio, lawned area and a gorgeous array of planted borders. At the front, you will find allocated parking and there are visitor spaces and on street parking close by.

Share price: 40% share £120,000
Full price: £300,000
Monthly rent: £438.03
Monthly service charge: £32.59

monthly rent and service charge subject to annual review

You can staircase up to 100%

There are 89 years remaining on the lease.

This property is available to any buyer who meets the affordability criteria (not just those with a local area connection) due to the length of time the property has been marketing with Ocean Housing previously.



.

Hallway 2.44m x 1.57m (8'0 x 5'2)
.

Lounge 4.65m x 3.78m (15'3 x 12'5)
.

Kitchen Diner 4.93m x 3.81m (16'2 x 12'6)
.

Bedroom 1 3.78m x 2.64m (12'5 x 8'8)
.

En Suite 1.93m x 0.97m (6'4 x 3'2)
.

Bedroom 2 3.58m x 2.64m (11'9 x 8'8)
.

Bedroom 3 2.51m x 2.13m (8'3 x 7'0)
.

Bathroom 2.16m x 1.70m (7'1 x 5'7)
.

Room Dimensions

Location

Sale Agreed
1 Receptions
Tenure: Leasehold
3 Bedrooms
Terraced House
2 Bathrooms
  • Make Enquiry
  • Floorplan
  • View Brochure
  • View EPC
  • Utilities & More
  • Add To Shortlist
  • Send To Friend

Interested in this property? Call us on 01637 877 754.

Key Features

  • 40% SHARED OWNERSHIP THREE BEDROOM HOUSE
  • PLENTY OF STORAGE
  • GORGEOUS, MATURE GARDEN
  • ALLOCATED PARKING
  • IMMACULATELY PRESENTED THROUGHOUT
  • IDYLLIC VILLAGE LOCATION
  • PERFECT FOR FIRST TIME BUYERS
  • STAIRCASE UP TO 100%
Council Tax Band: C

Key Features

  • 40% SHARED OWNERSHIP THREE BEDROOM HOUSE
  • PLENTY OF STORAGE
  • GORGEOUS, MATURE GARDEN
  • ALLOCATED PARKING
  • IMMACULATELY PRESENTED THROUGHOUT
  • IDYLLIC VILLAGE LOCATION
  • PERFECT FOR FIRST TIME BUYERS
  • STAIRCASE UP TO 100%
Council Tax Band: C

Enquire about this property

To arrange a viewing, feel free to call us on 01637 877754 or complete the short form and we will be in touch shortly.

Similar Properties

Leasehold Property & Vendor Information Form

Please complete all the fields within the form to enable us to instruct and begin marketing your property. It is important that we comply with current regulations relating to consumer regulations relating to consumer protection from unfair trading. This information is used to provide details relating to your property. The information below needs to be truthful and accurate to the best of your knowledge as a prospective buyer may rely upon this information when considering the purchase of your property.

Property Fact Find

Please complete all the fields within the form below to provide us with complete details of your property

Tenant Application Form

Please complete all the fields within the application to provide us with a clear outline of your status and requirements. By completing this application form I am agreeing and confirming to the following declaration; I am over 18 years of age and the information supplied on the application form is true and accurate. I am giving my consent for Seymour Av Limited, t/a Mo Move Newquay to use my information and personal data only to source credit and referencing checks, confirmation of employment, utility providers and local council (council tax) in relation to entering into a tenancy agreement managed or supplied by the agents Mo Move Newquay.

Freehold Property & Vendor Information Form

Please complete all the fields within the form to enable us to instruct and begin marketing your property. It is important that we comply with current regulations relating to consumer regulations relating to consumer protection from unfair trading. This information is used to provide details relating to your property. The information below needs to be truthful and accurate to the best of your knowledge as a prospective buyer may rely upon this information when considering the purchase of your property.