Perran Lodge, Newquay

For Sale
1 Receptions
Tenure: Leasehold
1 Bedrooms
1 Bathrooms

Perran Lodge, Newquay

£225,000

Property Summary

A GROUND FLOOR ONE BEDROOM LUXURY RETIREMENT APARTMENT PRESENTED TO THE HIGHEST STANDARD WITH DIRECT ACCESS TO THE COMMUNAL SOUTHERLY FACING GARDENS VIA THE LOUNGE AND BEDROOM WITHIN EASY FLAT WALKING DISTANCE OF CHESTER ROAD AND THE BARROWFIELDS.

Read full description

Full Details

Perran Lodge is an impressive development of high-quality retirement apartments by Churchill, ideally positioned within easy walking distance of Chester Road and Barrowfields. Built in 2018, it has quickly established itself as one of the most sought-after retirement communities in the area. Residents benefit from close proximity to several beaches, the South West Coast Path, and a convenient bus stop just outside.
Designed for independent living, Perran Lodge is available to those aged 60 and over (or 55 if in a partnership with someone over 60). The development offers a range of excellent communal facilities, including a wellbeing suite, two guest rooms, a stylish owners’ lounge with direct access to a sun patio and garden, and ample parking for both residents and visitors. Additional features include a secure entry system, a house manager that is on site 5 days a week, a 24-hour care line for out-of-hours support, energy-efficient ground source central heating, and lift access to all floors.

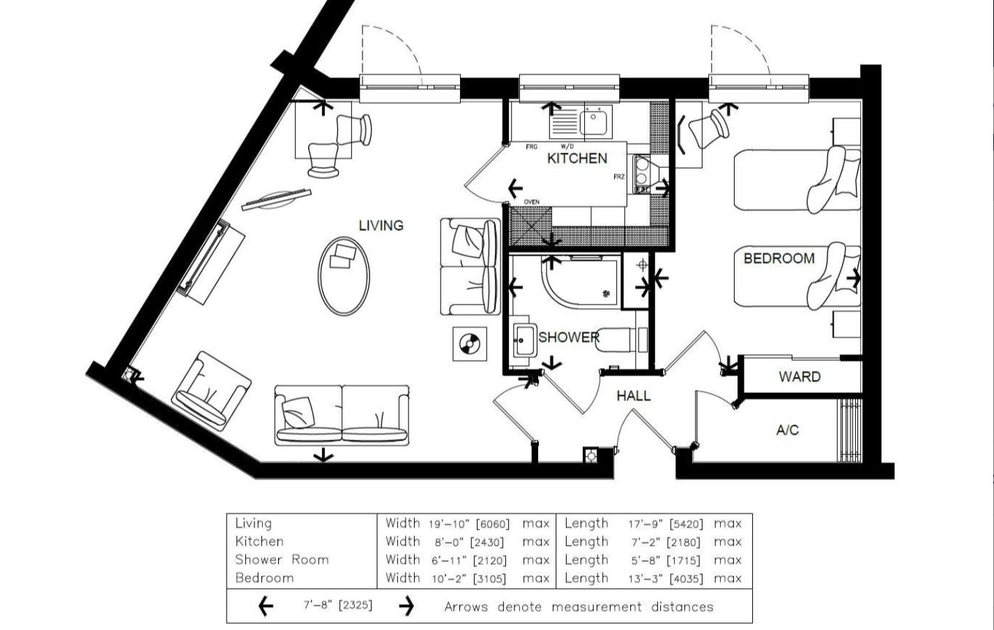
Apartment 3 is situated on the ground floor with direct access to the communal southerly facing gardens. Larger than average, this property features a welcoming entrance hallway with a useful storage cupboard and access to all rooms. The open-plan lounge diner, and kitchen area is bright and airy, offering plenty of space for both living and dining furniture and the contemporary kitchen is well-equipped with an integrated fridge, freezer, eye-level oven, and electric hob with space for a washer dryer.

The generous double bedroom includes built-in mirrored wardrobes and benefits from the same access to the communal gardens. Completing the accommodation, the fully tiled shower room features a large walk-in shower, wc, wash basin and heated towel rail.

Presented to a high standard throughout, the apartment offers neutral décor and high quality carpets, making it ready to move straight into with no onward chain.

LEASE DETAILS FOR 2025/2026
999-year lease, new in 2018
Ground Rent: £575.00 per year payable half yearly
Service Charge: £3394.16 per year, payable half yearly
Pets by permission of the House Manager

The service charge covers ground source central heating, hot water, buildings insurance, and window cleaning.

In summary, this beautifully presented, turnkey retirement apartment offers comfortable, secure, and convenient living in a highly desirable coastal location.


.

Lounge 6.05m x 5.38m max (19'10" x 17'7" max)
.

Kitchen 2.44m x 2.13m (8'0 x 7'0)
.

Bedroom 4.04m x 3.10m (13'3 x 10'2)
.

Shower Room 2.11m x 1.73m (6'11 x 5'8)
.

Property Listing Disclaimer
In compliance with the Digital Markets, Competition & Consumers Act (DMCC): Mo Move Newquay has not tested fixtures, fittings, or services (including appliances/heating systems). Serviceable condition cannot be verified. Please consult your conveyancing solicitor for professional verification of all systems.

All references to property tenure are based solely on vendor-provided information. Mo Move Newquay has not reviewed any freehold/leasehold information. Please consult your appointed conveyancing solicitor to verify property title and tenure and to confirm leasehold/freehold status, parking arrangements/rights, covenants & easements.

Items shown in photographs are not included unless specifically mentioned in the sales particulars.

All measurements are approximate and are to be used as a ‘guide only’.

Pets are not permitted on any viewings.

Room Dimensions

Location

For Sale
1 Receptions
Tenure: Leasehold
1 Bedrooms
1 Bathrooms
  • Make Enquiry
  • Floorplan
  • View Brochure
  • View EPC
  • Utilities & More
  • Add To Shortlist
  • Send To Friend

Interested in this property? Call us on 01637 877 754.

Key Features

  • LUXURY ONE BEDROOM RETIREMENT APARTMENT
  • GROUND FLOOR WITH DIRECT ACCESS TO THE SOUTHERLY FACING COMMUNAL GARDEN
  • WATER AND HEATING INCLUDED IN SERVICE CHARGE
  • GROUND SOURCE CENTRAL HEATING
  • FULL TIME HOUSE MANAGER
  • AMPLE PARKING
  • SAFE, SECURE ECONOMICAL LIVING
  • EASY FLAT WALK TO CHESTER ROAD AND THE BARROWFIELDS
  • NO ONWARD CHAIN
Council Tax Band: B

Key Features

  • LUXURY ONE BEDROOM RETIREMENT APARTMENT
  • GROUND FLOOR WITH DIRECT ACCESS TO THE SOUTHERLY FACING COMMUNAL GARDEN
  • WATER AND HEATING INCLUDED IN SERVICE CHARGE
  • GROUND SOURCE CENTRAL HEATING
  • FULL TIME HOUSE MANAGER
  • AMPLE PARKING
  • SAFE, SECURE ECONOMICAL LIVING
  • EASY FLAT WALK TO CHESTER ROAD AND THE BARROWFIELDS
  • NO ONWARD CHAIN
Council Tax Band: B

Enquire about this property

To arrange a viewing, feel free to call us on 01637 877754 or complete the short form and we will be in touch shortly.

Similar Properties

Leasehold Property & Vendor Information Form

Please complete all the fields within the form to enable us to instruct and begin marketing your property. It is important that we comply with current regulations relating to consumer regulations relating to consumer protection from unfair trading. This information is used to provide details relating to your property. The information below needs to be truthful and accurate to the best of your knowledge as a prospective buyer may rely upon this information when considering the purchase of your property.

Property Fact Find

Please complete all the fields within the form below to provide us with complete details of your property

Tenant Application Form

Please complete all the fields within the application to provide us with a clear outline of your status and requirements. By completing this application form I am agreeing and confirming to the following declaration; I am over 18 years of age and the information supplied on the application form is true and accurate. I am giving my consent for Seymour Av Limited, t/a Mo Move Newquay to use my information and personal data only to source credit and referencing checks, confirmation of employment, utility providers and local council (council tax) in relation to entering into a tenancy agreement managed or supplied by the agents Mo Move Newquay.

Freehold Property & Vendor Information Form

Please complete all the fields within the form to enable us to instruct and begin marketing your property. It is important that we comply with current regulations relating to consumer regulations relating to consumer protection from unfair trading. This information is used to provide details relating to your property. The information below needs to be truthful and accurate to the best of your knowledge as a prospective buyer may rely upon this information when considering the purchase of your property.